I・pikkuシリーズ01「Procyon」

‐パークハイツ中津川‐





再開発の進む肴町エリアの中古マンションをリノベーション。

 

バスセンターやアーケードの利便性もさながら、岩手公園の

自然を感じる川沿いの散歩コースもすぐそば。

 

建築資材が高騰する中、利用できるものは再利用するという

リノベーション本来の在り方を体現する一室。

 

バブルの時期に建築されたマンションは実は立派な材料を使用

していることもしばしば。

 

古くなっても塗装や部品を変えることで、一気に味のある雰囲気に

仕上がります。

 

天井もコンクリートを現し、中古マンションにありがちな天井の

低さを感じさせず、開放的なお部屋に仕上げました。

 

室内も住環境もリノベーションされた特別な一部屋。


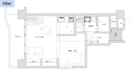
工事内容

 キッチン交換 / ユニットバス交換 / トイレ交換 / 洗面台交換 / フロア貼替 

 天井・壁クロス貼替 / エアコン新設 / 給湯器交換 / 間取り変更  その他


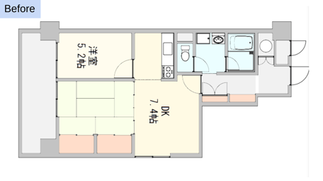
Before(工事前)

During(工事中)